Oosteinde 5 a 1, Barendrecht

Kenmerken

Prijs
€ 1.250 p.m.
Wijk
BT Dierenstein
Postcode
2991 LG Barendrecht
Object type
Bedrijfsruimte
Soort bouw
Bestaande bouw
Oppervlakte
124m²
Units vanaf
62m²

Download Brochure


Omschrijving

Betreft
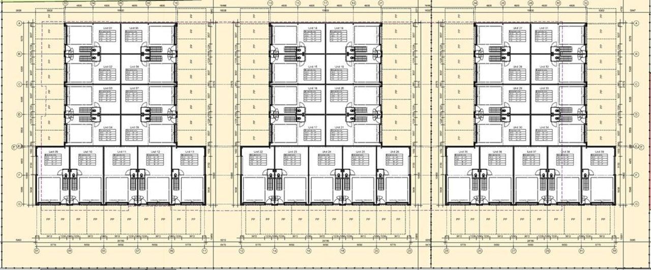
Op bedrijventerrein Dierenstein in Barendrecht wordt aan Oosteinde?5 een nieuwbouwproject gerealiseerd met moderne bedrijfshallen en bedrijfsunits. Het gaat om kleinschalige, efficiënt ingedeelde ruimtes die aantrekkelijk zijn voor ondernemers in productie, logistiek en dienstverlening.
De units hebben een praktische indeling met een begane grond (en bij sommige units met verdiepingsvloer), voorzien van elektrisch bedienbare overheaddeuren.
De bouw maakt deel uit van het project Dierenstein Bedrijfsunits fase?1 en speelt in op de sterke vraag naar flexibele bedrijfsruimte op een locatie met uitstekende verbindingen naar de A15, A16 en A29, en vlakbij het NS?station Barendrecht.
De units worden uitgevoerd met geïsoleerde wanden en dak, betonnen vloeren en zijn geschikt voor uiteenlopende bedrijfsactiviteiten. De oplevering is gepland rond tweede kwartaal 2026.


Oppervlakte/indeling
Oosteinde nr. 36: ca. 62 m2 bedrijfsruimte
Oosteinde nr. 37: ca. 62 m2 bedrijfsruimte
Oosteinde nr. 38: ca. 62 m2 bedrijfsruimte
Oosteinde nr. 13 ca. 124 m2 bedrijfsruimte (voorzien van entresolvloer)

Parkeren
Bij elke bedrijfsruimte hoort één parkeerplaats op het voorgelegen terrein. Langs de openbare weg kan tegen betaling worden geparkeerd, bij de gemeente Barendrecht kunnen parkeervergunningen worden aangevraagd.

Beschikbaar
Beschikbaar per Q2 2026

Bedrijventerrein Dierenstein
Bedrijventerrein Dierenstein is gelegen in Barendrecht en maakt onderdeel uit van het bedrijventerrein Barendrecht-Oost. Het terrein vervult een belangrijke functie binnen de lokale en regionale economie, met een duidelijke focus op logistiek, handel, productie en zakelijke dienstverlening.

Dierenstein kent een overwegend functioneel karakter en biedt ruimte aan een gevarieerd aanbod van bedrijven, variërend van kleinere bedrijfsunits tot grotere bedrijfshallen en distributiecentra. De nabijheid van de Rotterdamse haven maakt het terrein met name geschikt voor logistieke en opslaggerelateerde activiteiten. Het gebied omvat onder meer de straten Donk, Zweth, Oosteinde en Zuideinde en heeft een beperkte woonfunctie.

Binnen de Bedrijveninvesteringszone (BIZ) Dierenstein werken ondernemers en vastgoedeigenaren samen aan het beheer, de veiligheid en de uitstraling van het terrein. De verlenging van de BIZ tot 2028 onderstreept het belang van deze samenwerking en de ambitie om het bedrijventerrein toekomstbestendig te houden.

Bereikbaarheid
De bereikbaarheid van bedrijventerrein Dierenstein is zeer goed en vormt een belangrijk vestigingsvoordeel. Het terrein ligt nabij knooppunt Ridderkerk en heeft directe aansluiting op de snelwegen A15, A16 en A29. Hierdoor zijn Rotterdam, de havengebieden, Dordrecht en Breda snel en efficiënt bereikbaar, zowel voor personenverkeer als voor vrachtverkeer.

Ook per openbaar vervoer is het terrein goed ontsloten. Station Barendrecht ligt op korte afstand en biedt frequente treinverbindingen richting Rotterdam en Dordrecht. Daarnaast zorgen diverse buslijnen voor een aanvullende verbinding met de omliggende woongebieden.

De interne wegenstructuur is ingericht op bedrijfsverkeer, met voldoende ruimte voor vrachtwagens en een logische ontsluiting richting het hoofdwegennet. Deze combinatie van weg- en OV-bereikbaarheid maakt Dierenstein geschikt voor logistieke, industriële en dienstverlenende functies.

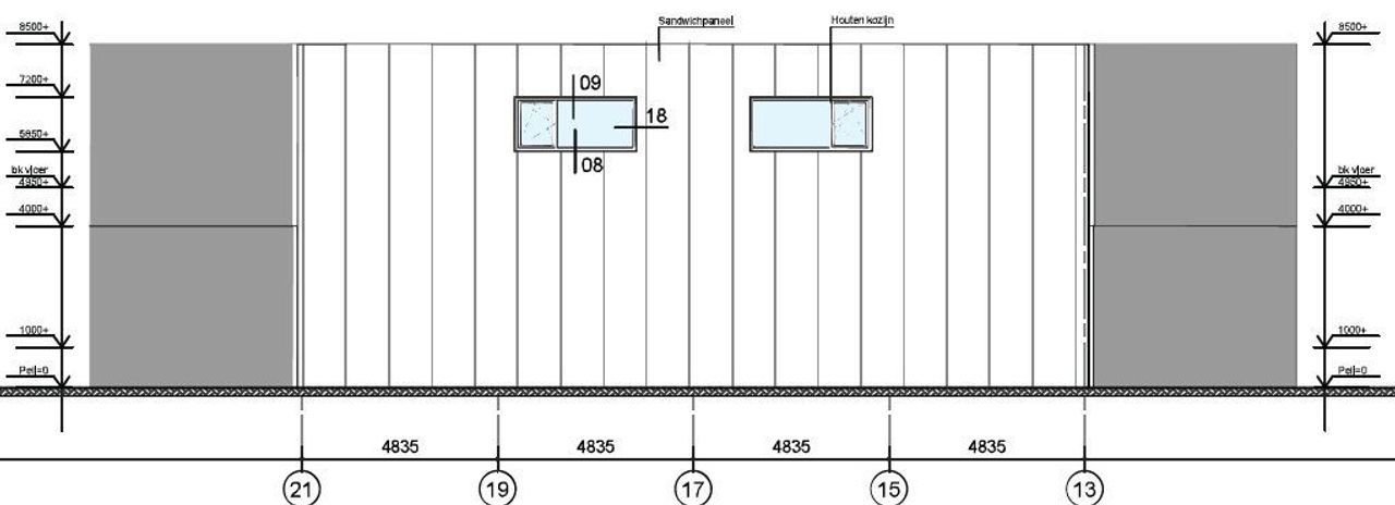
Opleveringsniveau
Het object wordt nieuw opgeleverd en is onder meer voorzien van:
- Elektra aansluiting 3x25A;
- Glasvezel aansluiting;
- Toiletgroep;
- Loopdeur;
- Nieuwe pantry met keukenblok voorzien van close-in-boiler;
- Meterkast;
- Vrije hoogte van 8 m, indien met verdiepingsvloer 4 m
- Elektrisch bedienbare overheaddeur (4 m hoog);
- HR++ beglazing
- Vloerbelasting begane grond van 1.000 kg p/m2
- Verdiepingsvloeren (enkel op nr. 13 & 38, vloerbelasting van 350 kg p/m2)
- Buitenverlichting aan de voorgevel

Servicekosten
Niet van toepassing.

Huurperiode
5 (vijf) jaar met verlengingsperiode(n) van telkens 5 jaar. Afwijkende huurperioden zijn bespreekbaar.

Huurprijs
Oosteinde nr. 36: € 1.250,-- per maand
Oosteinde nr. 37: € 1.250,-- per maand
Oosteinde nr. 38: € 1.250,-- per maand
Oosteinde nr. 13: € 1.500,-- per maand

Bovengenoemde bedragen zijn exclusief BTW, de units zijn ook gecombineerd te huren.

Huurbetalingen
Per maand vooruit te voldoen.

Huurprijsindexering
Jaarlijks voor het eerst 1 jaar na huuringangsdatum, op basis van de consumentenprijsindex (CPI), reeks “CPI-Alle huishoudens – laag (2015=100).

BTW
Verhuurder wenst te opteren voor een met BTW belaste verhuur. Genoemde prijzen zijn exclusief BTW.

Huurovereenkomst
Op basis van de standaard huurovereenkomst op basis van het ROZ-model Kantoorruimte en overige bedrijfsruimte in de zin van 7:230 BW.

Waarborgsom/bankgarantie
Een waarborgsom of bankgarantie gelijk aan 3 maanden bruto huurverplichting (huur + servicekosten te vermeerderen met BTW).

Kenmerken

Overdracht

Prijs
€ 1.250 p.m.
Status
Beschikbaar

Bouw

Object type
Bedrijfsruimte
Soort bouw
Bestaande bouw

Oppervlakten

Totaaloppervlakte
124m²
Units vanaf
62m²
Vrije hoogte
8cm

Indeling

Voorzieningen
Overheaddeuren, Betonvloer, Toilet, Pantry

Documenten

Locatie

[ { "lat": 51.8623822, "lng": 4.5537615, "heading": 0, "pitch": 0 } ]

Reageer

Uw bericht is naar ons verzonden. Wij nemen zo snel mogelijk contact met u op.

Er is iets mis gegaan met het versturen van het formulier.
Controleer of u alle velden (goed) heeft ingevoerd en probeer het nog een keer.

recaptcha
reCAPTCHA
PrivacyTerms