Albert Plesmanweg 37 A, Rotterdam

Kenmerken

Prijs
€ 900 p.m.
Wijk
Waalhaven Zuid
Postcode
3088 GA Rotterdam
Object type
Kantoorruimte
Bouwjaar
2001-2010
Soort bouw
Bestaande bouw
Oppervlakte
603m²
Units vanaf
79m²
Verdiepingen
4

Download Brochure


Omschrijving

Betreft:
Het Waalschip is een modern bedrijfsverzamelgebouw bestaande uit bedrijfsruimten en kantoorruimten, plaatselijk bekend als Albert Plesmanweg 37 – 43 te (3088 GB) Rotterdam.

Recent is het Waalschip in handen gekomen van de huidige eigenaar/verhuurder. Direct is er aangevangen met forse investeringen in verbetering van de kwaliteit, comfort, uitstraling en verduurzaming van het gebouw. Inmiddels beschikt het Waalschip over een Energielabel A+++.

Het Waalschip beschikt over diverse gemeenschappelijke faciliteiten zoals een receptie en vergaderruimten. Huurders kunnen hiervan zonder extra kosten gebruik maken (op basis van een fair-use policy). De kantoorruimten zijn verdeeld op de begane grond tot en met de derde verdieping en zijn gesitueerd aan de voorzijde van het complex. Het gebouw biedt een brede variatie aan zelfstandige kantoorruimten. Er zijn huurmogelijkheden vanaf circa 79,5 m2.

Naast kantoorruimte zijn er regelmatig bedrijfsruimten vanaf circa 156 m2 beschikbaar in het Waalschip, tevens zijn er nog enkele archief-/opslagruimten beschikbaar. Op eigen terrein zijn voldoende parkeerplaatsen gesitueerd ten behoeve van huurders en bezoekers van het Waalschip. Daarnaast zijn er langs de openbare weg diverse (gratis) parkeerplaatsen beschikbaar.

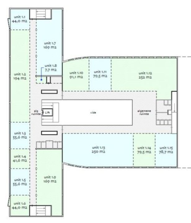
Onderstaand het actuele aanbod van de kantoorruimte in het Waalschip:
Unit Verdieping metrage VVO Huurprijs per maand* Beschikbaar per
Unit 0.4 begane grond 79,7 m2 € 900,-- in overleg
Unit 1.09 1e verdieping 169,0 m2 € 1.750,--
Unit 1.10 1e verdieping 91,1 m2 € 1.100,-- per 1 september 2026
Unit 1.14 1e verdieping 79,5 m2 € 900,-- in overleg
Unit 2.7 & 2.8 2e verdieping 99,6 m2 € 1.075,-- in overleg
Unit 3.9 3e verdieping 84,3 m2 € 950,-- in overleg

Indien er in bovenstaand overzicht geen passende ruimte voor uw organisatie is opgenomen, bekijken wij graag in overleg met u eventuele alternatieve mogelijkheden om een passende ruimte in het Waalschip te creëren op basis van uw wensen.

Waalhaven
Bedrijventerrein Waalhaven, gelegen in Rotterdam, is een dynamisch en strategisch gelegen gebied dat essentieel is voor de economie en logistiek van de stad. Dit terrein, ooit ontwikkeld als de eerste luchthaven van Rotterdam, heeft zich getransformeerd tot een veelzijdig bedrijventerrein dat een breed scala aan bedrijven huisvest, voornamelijk gericht op haven- en logistieke activiteiten. Met de Waalhaven als centraal punt biedt het gebied uitstekende verbindingen over water, weg en spoor, wat het een ideale locatie maakt voor bedrijven die afhankelijk zijn van efficiënte transport- en distributienetwerken.

De Waalhaven is niet alleen van belang voor de scheepvaart en goederenoverslag maar dient ook als een broedplaats voor innovatie binnen de logistieke sector. Het terrein biedt faciliteiten en diensten die zijn afgestemd op de behoeften van moderne ondernemingen, waaronder op maat gemaakte opslagoplossingen en geavanceerde logistieke diensten. Daarnaast zet het gebied in op duurzaamheid en groene initiatieven, wat het aantrekkelijk maakt voor bedrijven die waarde hechten aan maatschappelijk verantwoord ondernemen.

Met zijn rijke historie, strategische ligging en focus op innovatie en duurzaamheid, speelt bedrijventerrein Waalhaven een cruciale rol in de Rotterdamse haven en de bredere economie. Het blijft zich ontwikkelen en aanpassen aan de veranderende behoeften van de industrie, waardoor het een sleutelgebied blijft voor ondernemingen binnen en buiten de regio.

Bereikbaarheid
Het kantoorgebouw Waalschip, gelegen aan de Albert Plesmanweg 37-43 in de Waalhaven van Rotterdam, biedt uitstekende bereikbaarheid zowel per auto als met openbaar vervoer, wat het een aantrekkelijke locatie maakt voor bedrijven en hun bezoekers.

Auto
De Waalhaven is strategisch gelegen nabij enkele van de belangrijkste verkeersaders van Rotterdam, waardoor het Waalschip gebouw gemakkelijk bereikbaar is voor automobilisten. De A15, een belangrijke snelweg die directe verbindingen biedt naar zowel het oosten als het westen van Nederland, ligt in de directe nabijheid. Dit maakt het eenvoudig voor medewerkers en bezoekers om het kantoorgebouw vanuit diverse delen van het land te bereiken. Bovendien zorgt de ligging dicht bij de A4 en de A16 voor snelle verbindingen naar andere grote steden en regio's, waaronder Den Haag en Breda. Het gebied biedt voldoende parkeermogelijkheden, wat de toegankelijkheid voor automobilisten verder vergemakkelijkt.

Openbaar Vervoer
Wat betreft openbaar vervoer, profiteert het Waalschip gebouw van de goed ontwikkelde OV-infrastructuur van Rotterdam. Hoewel de Waalhaven voornamelijk bekend staat om zijn industriële en logistieke functies, zijn er regelmatige busverbindingen die een goede verbinding met het centrum van Rotterdam en andere delen van de stad waarborgen. Buslijnen zoals lijn 68 bieden directe verbindingen naar belangrijke knooppunten, waaronder metro- en treinstations, wat de toegankelijkheid voor mensen die afhankelijk zijn van het openbaar vervoer verhoogt. Deze connectiviteit maakt het mogelijk voor werknemers en bezoekers om het kantoorgebouw efficiënt te bereiken, zelfs zonder gebruik te maken van een auto.

De combinatie van uitstekende bereikbaarheid per auto, met ruime parkeergelegenheid, en de goede aansluiting op het openbaar vervoernetwerk, maakt het Waalschip een aantrekkelijke locatie voor bedrijven die op zoek zijn naar een goed bereikbare kantoorruimte in Rotterdam.

Opleveringsniveau
Het Waalschip is onder andere voorzien van:
- Gemeubileerde entree met bemande receptie;
- Gemeenschappelijke vergaderruimten;
- Zonnepanelen;
- Toiletgroep(en) per verdieping;
- Pantry’(s) per verdieping;
- Liftinstallatie;
- Luchtbehandelingsinstallatie (koeling en ventilatie);

De kantoorruimten worden in gerenoveerde staat opgeleverd en zijn onder andere voorzien van:
- Geëgaliseerde vloer;
- Gesausde wanden (wit);
- Systeemplafond;
- LED-verlichtingsarmaturen voorzien van bewegingssensoren;
- Wandkabelgoten voorzien van elektrabekabeling en WCD’s;
- Databekabeling;
- Intercominstallatie;
- Zonwering buitenzijde;
- Lichtwering binnenzijde;
- Alarminstallatie;
- Verwarming middels radiatoren;
- Te openen ramen.
- Enkele kantoorruimten zijn reeds van vloerbedekking voorzien.

Leveringen & diensten
Een voorschotbedrag van € 40,-- per m2 per jaar exclusief BTW, ten behoeve van onder andere de navolgende leveringen en diensten (niet limitatief):
- Service abonnement, elektriciteitsverbruik, brandstofverbruik, waterverbruik, verbruiksmeting, bediening, storingen
verhelpen, keuringskosten e.d. ten behoeve van gebouw gebonden installaties:
- Levering ten behoeve van gebruik door huurder (alsmede huurders aandeel in gemeenschappelijk gebruik) van water,
gas en elektriciteit, daaronder begrepen de kosten van meterhuur;
- Gemeenschappelijke verlichting, daaronder begrepen de kosten van armaturen, buizen en lampen;
- Wassen van de ruiten en kozijnen aan de buitenzijde van het gehuurde;
- Wassen van de ruiten en kozijnen van de algemene-/gemeenschappelijke-en dienstruimten aan de binnen-en
buitenzijde;
- Vuilafvoer, containerhuur e.d.;
- Terrein -en vijver onderhoud;
- Ongedierte bestrijding;
- Schoonhouden van de algemene-/gemeenschappelijke-en dienstruimten, algemene terreinen, parkeerruimten, wegen
enz.;
- Sanitaire voorzieningen, handdoekenautomaat, zeep, e.d. in de algemene ruimten;
- Onderhoud en vervanging van de plantenbakken en van meubilair en stoffering in de algemene-gemeenschappelijke-en
dienstruimten;
- Kosten van de uitvoering van een tweejaarlijkse risicoanalyse ten behoeve van legionella preventie;
- Onderhoud toegangscontrole en brand beveiligingsinstallatie(s);
- Onderhoud bliksem beveiliging;
- Facilitaire dienstverlening;
- Onderhoud gevelreiniging;
- 5 % administratiekosten.

Energielabel
Recent is er fors geïnvesteerd in de verduurzaming van het Waalschip. Hierdoor beschikt het Waalschip inmiddels over een Energielabel A+++.

Huurperiode
5 (vijf) jaar met verlengingsperiode(n) van telkens 5 jaar. Afwijkende huurperioden zijn bespreekbaar.

Huurbetalingen
Per maand/kwartaal vooruit te voldoen

Huurprijsindexering
Jaarlijks voor het eerst 1 jaar na huuringangsdatum, op basis van de consumentenprijsindex (CPI), reeks “CPI-Alle huishoudens – laag (2015=100).

BTW
Verhuurder wenst te opteren voor een met BTW belaste verhuur. Dit betekend dat er BTW over de huurprijs in rekening wordt gebracht. Indien een met BTW belaste verhuur niet mogelijk is zal de huurprijs worden verhoogd met een nader te bepalen bedrag. Over de servicekosten is ten alle tijden BTW verschuldigd.

Huurovereenkomst
Op basis van de standaard huurovereenkomst op basis van het ROZ-model Kantoorruimte en overige bedrijfsruimte in de zin van 7:230 BW.

Waarborgsom/bankgarantie
Een waarborgsom of bankgarantie gelijk aan 3 maanden bruto huurverplichting (huur + servicekosten te vermeerderen met BTW).

Kenmerken

Overdracht

Prijs
€ 900 p.m.
Servicekosten
€ 40
Status
Beschikbaar

Bouw

Object type
Kantoorruimte
Soort bouw
Bestaande bouw
Bouwjaar
2001-2010

Oppervlakten

Totaaloppervlakte
603m²
Units vanaf
79m²

Indeling

Verdiepingen
4
Voorzieningen
Inbouwarmaturen, Liften, Te openen ramen, Kabelgoten, Systeemplafond, Toilet, Pantry, Verwarming, Kamerindeling

Documenten

Plattegronden

Locatie

[ { "lat": 51.8754058, "lng": 4.4529935, "heading": 0, "pitch": 0 } ]

Reageer

Uw bericht is naar ons verzonden. Wij nemen zo snel mogelijk contact met u op.

Er is iets mis gegaan met het versturen van het formulier.
Controleer of u alle velden (goed) heeft ingevoerd en probeer het nog een keer.

recaptcha
reCAPTCHA
PrivacyTerms

Vergelijkbare objecten

Verhuurd
Parklaan 3
3016 BA Rotterdam
40m² Kantoorruimte |

Verhuurd onder voorbehoud
Jufferstraat 340
3011 XM Rotterdam
60m² Kantoorruimte | € 1.000 p.m.