Goudsesingel 224, Rotterdam

Kenmerken

Prijs
€ 135.000 p.j.
Wijk
Stadsdriehoek
Postcode
3011 KE Rotterdam
Object type
Winkelruimte
Soort bouw
Bestaande bouw
Oppervlakte
893m²
Units vanaf
893m²
Verdiepingen
3

Download Brochure


Omschrijving

Betreft
Het betreft een winkelruimte verdeeld over de begane grond, entrolsolvloer en kelder. De winkelruimten zijn gelegen respectievelijk aan de goudsesingel 224-228 te (3011 KE) Rotterdam en Kipstraat 7 A te (3011 KE) Rotterdam.

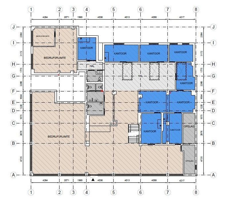
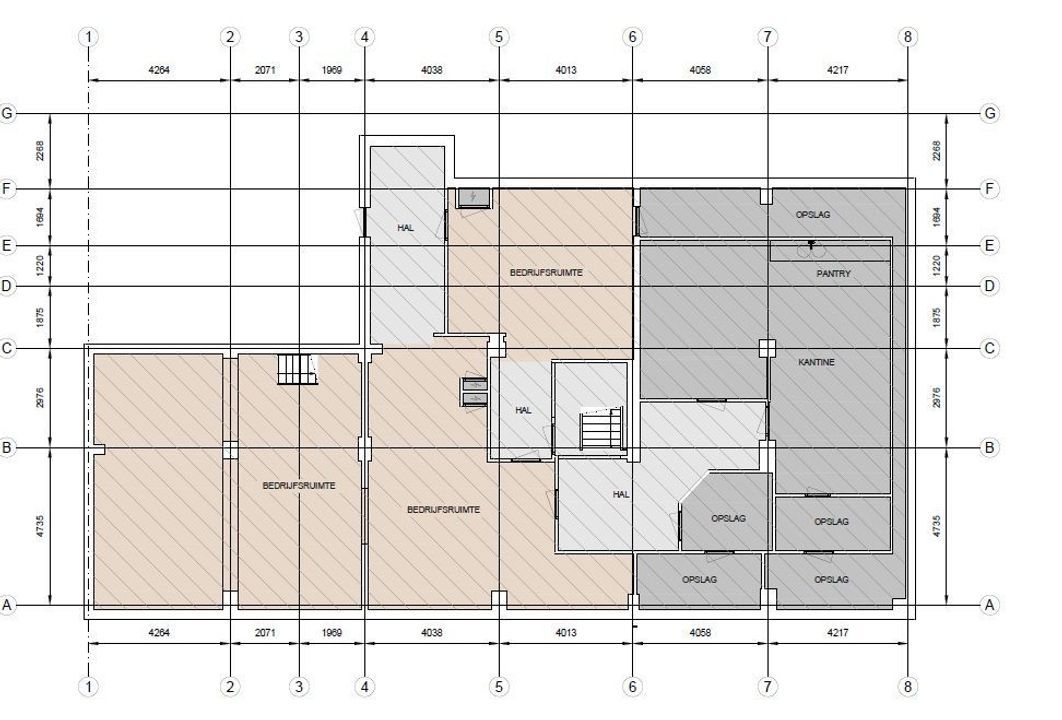
Oppervlakte/indeling
Goudsesingel 224-225
Begane grond circa 487 m² winkelruimte
Entresol circa 113m² winkelruimte
Kelder circa 293 m2 opslagruimte
Totaal circa 893 m²

Parkeren
Langs de openbare weg kan tegen betaling worden geparkeerd, bij de gemeente Rotterdam kunnen parkeervergunningen worden aangevraagd.

Beschikbaar
In overleg, mogelijkheden op korte termijn.

Bestemmingsplan
Conform bestemmingsplan “Laurenskwartier” (onherroepelijk d.d. 23-03-2013), heeft het object de bestemming “Centrum” en is derhalve geschikt voor:
-Kantoren;
-Detailhandel;
-Dienstverlenging;
-Horeca;
-Maatschappelijk;
-Cultuur en Ontspanning;
-Bedrijven t/m categorie 2.

Omgeving
Het winkelpand is gelegen aan de Goudsesingel, een levendige en populaire straat in het centrum van Rotterdam. De Goudsesingel vormt een belangrijke verbinding tussen de Oostzeedijk en de Meent en staat bekend om haar gevarieerde aanbod aan horecazaken, speciaalzaken, creatieve concepten en ambachtelijke winkels.

De directe omgeving is volop in ontwikkeling en trekt een divers publiek aan van buurtbewoners, dagjesmensen en stadstoeristen. De locatie bevindt zich op steenworp afstand van de bruisende Meent, de Markthal en Station Blaak, wat zorgt voor een constante stroom van passanten en een uitstekende bereikbaarheid met zowel het openbaar vervoer als de auto.

Dankzij de combinatie van karakteristieke wederopbouwarchitectuur en moderne stadsontwikkeling heeft de Goudsesingel zich ontwikkeld tot een trendy hotspot binnen het centrum van Rotterdam. Dit maakt het winkelpand uitermate geschikt voor ondernemers die zich willen vestigen op een prominente en inspirerende locatie.

Bereikbaarheid
De Goudsesingel is uitstekend bereikbaar, zowel met het openbaar vervoer als met eigen vervoer. Op loopafstand bevinden zich diverse tram- en bushaltes, evenals Station Rotterdam Blaak, waar trein, metro en tram samenkomen. Hierdoor is het pand eenvoudig te bereiken voor bezoekers uit zowel de stad als de regio.

Met de auto is de locatie goed toegankelijk via de Maasboulevard en de S100 (centrumring). Via deze routes zijn de rijkswegen A16 en A20 binnen enkele minuten bereikbaar.

In de directe omgeving zijn meerdere parkeergarages aanwezig, waaronder parkeergarage de Markthal, wat het gemakkelijk maakt voor bezoekers om in de buurt te parkeren.

De centrale ligging en de goede infrastructuur maken deze locatie aantrekkelijk voor uiteenlopende ondernemers, variërend van retail en horeca tot dienstverlening.

Opleveringsniveau
Het object wordt in cascostaat opgeleverd, met dien verstande dat de volgende inrichtingscomponenten aanwezig zijn:
- Toiletgroepen;
- Aircoinstallatie;
- (blok) verwarming;
- Geëgaliseerde betonvloer.

Servicekosten
Niet van toepassing.

Huurperiode
5 (vijf) jaar met verlengingsperiode(n) van telkens 5 jaar.

Huurprijs
€ 135.000,-- per jaar exclusief BTW

Huurbetalingen
Per maand vooruit te voldoen.

Huurprijsindexering
Jaarlijks voor het eerst 1 jaar na huuringangsdatum, op basis van de consumentenprijsindex (CPI), reeks “CPI-Alle huishoudens – laag (2015=100).

BTW
Verhuurder wenst te opteren voor een met BTW belaste verhuur. Genoemde prijzen zijn exclusief BTW.

Huurovereenkomst
Op basis van de standaard huurovereenkomst op basis van het ROZ-model Winkelruimte en andere bedrijfsruimte in de zin van 7:290 BW.

Waarborgsom/bankgarantie
Een waarborgsom of bankgarantie gelijk aan 3 maanden bruto huurverplichting (huur + servicekosten te vermeerderen met BTW).

Kenmerken

Overdracht

Prijs
€ 135.000 p.j.
Status
Beschikbaar

Bouw

Object type
Winkelruimte
Soort bouw
Bestaande bouw

Oppervlakten

Totaaloppervlakte
893m²
Units vanaf
893m²

Indeling

Verdiepingen
3
Voorzieningen
Toilet, Verwarming

Documenten

Plattegronden

Locatie

[ { "lat": 51.9239718, "lng": 4.4914698, "heading": 0, "pitch": 0 } ]

Reageer

Uw bericht is naar ons verzonden. Wij nemen zo snel mogelijk contact met u op.

Er is iets mis gegaan met het versturen van het formulier.
Controleer of u alle velden (goed) heeft ingevoerd en probeer het nog een keer.

recaptcha
reCAPTCHA
PrivacyTerms